Adatok
- Alapterület (m²): 320 m²
- Szobák száma: 5+ szobás
- Extra / Komfort: Erkély, Kertkapcsolat, Panorámás, Csendes, Napfényes, Új nyílászárók, Klíma, Okosotthon, Lift
- Ingatlan állapota: Új építésű
- Ingatlan típusa: Ház
- Lokáció / Környék: Parkolás megoldott, Tömegközlekedés közel, Zöldövezet, Iskola/óvoda közel
- Telek méret (m²): 965
Leírás
-
Leírás:
EXKLUZÍV ÚJ ÉPÍTÉSŰ LUXUSVILLA A ZÖLDÖVEZETBEN
Budapest egyik legelit környékén, széphalmon, a ll/A kerületben kínálunk megvételre egy minden igényt kielégítő, új építésű luxus családi házat, amely tökéletes választás nagycsaládosoknak vagy prémium életteret keresőknek.
a 965 m²-es telken elhelyezkedő ingatlan nettó 320 m² lakótérrel, nagyvonalú terekkel és kiemelkedő műszaki tartalommal épül.
Főbb paraméterek
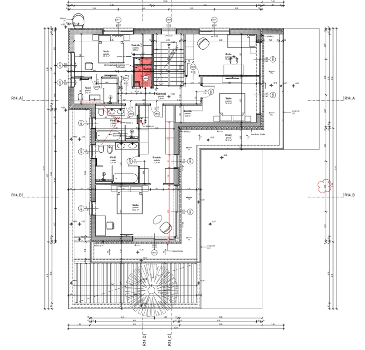
• lakótér: 320 m²
• telek: 965 m²
• nappali + konyha + étkező: 75 m²
• terasz: 105 m²
• erkély: 50 m²
• 5 hálószoba, mindegyik saját fürdőszobával
• szülői lakosztály gardróbbal és exkluzív fürdővel
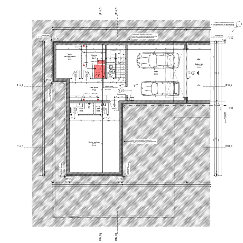
• 2 állásos garázs + 2 kültéri beálló
• 140 m² alagsor, többfunkciós térrel
Életérzés és terek
a ház központja egy 75 m²-es, egybefüggő nappali tér, amely közvetlen kapcsolatban áll a 105 m²-es, részben fedett terasszal, így a belső és külső terek harmonikusan összenyithatók.
az alagsorban egy több mint 40 m²-es, szabadon alakítható tér került kialakításra, amely ideális:
• moziszobának (5.1 rendszer előkészítve)
• konditeremnek
• wellness részlegnek
• vagy exkluzív hobbitérnek a kertben a medence kialakítása előkészített, így később minimális ráfordítással megvalósítható.
Műszaki tartalom – prémium szint, kompromisszumok nélkül
• porotherm 30 x therm falazat
• austrotherm grafitos hőszigetelés (akár 16 cm)
• 30 cm kőzetgyapot tetőszigetelés, modern lapostető kialakítás
• természetes anyaghasználat: fa nyílászárók, travertin kő és okoume burkolatok
• 3 rétegű, hőhídmentes fa nyílászárók
• emelő-toló rendszerek a nappaliban és hálókban
• elektromos alumínium redőnyök, szúnyoghálóval
• levegő-víz hőszivattyú (16 kw, h tarifa)
• padlófűtés + mennyezetfűtés és hűtés
• zónánként szabályozható hőmérséklet
• központi szellőztető rendszer (akár hővisszanyeréssel)
• prémium gépészet (rehau, grohe, laufen rendszerek)
• hangcsillapított csatornarendszer
• cirkulációs melegvíz rendszer
• teljes riasztórendszer és cctv kamera előkészítés
• videókaputelefon mindkét szinten
• strukturált hálózat, optikai kábel előkészítés
• 5.1 hangrendszer előkészítés a nappaliban
• elektromos autó töltési lehetőség
• napelem rendszer előkészítés
• egyedi belsőépítészeti megoldások
• prémium burkolatok (cifre, arcana, vallelunga)
• tölgy parketta, rejtett led világítások
Külső és kert
• parkosított kert, kerttervező által kialakítva
• automata öntözőrendszer, esőérzékelővel
• esővíz gyűjtő rendszer (5 m³)
• díszvilágítás és hangulatvilágítás
• térkövezett beállók és közlekedők
• elektromos kapu és garázskapu
Lokáció – elit budai környezet
• nemzetközi és elit iskolák a közelben
• amerikai nemzetközi iskola pár percre
• sportközpont, uszoda, parkok
• hűvösvölgy gyorsan elérhető
• kiváló infrastruktúra, mégis csendes, zöld környezet